VILARINHA

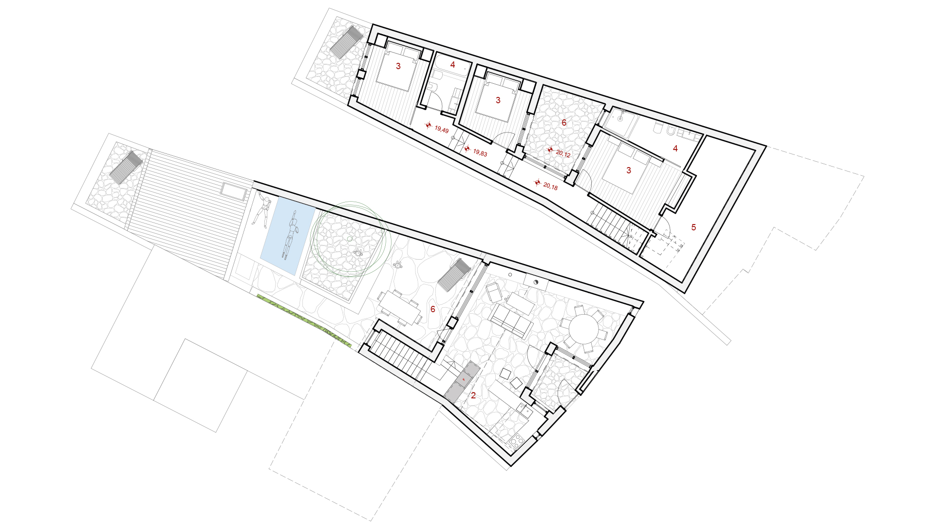
Aquisição de lote de terreno de 170m2 na pitoresca e exclusiva aldeia da Vilarinha, com viabilidade para a construção de uma moradia T3 com 160m2 de construção, com terraços e splash pool.

Empty heading.

Os Produtos

Empty heading.

Ficha do Projeto

Empty heading.
Empty heading.